Eladó családi ház Veszprém 104 900 000 Ft

Leírás

FIGYELEM! MÁR CSAK EGY ELADÓ INGATLAN MARADT!!

NÉGY SZOBA, NAGY NAPPALI, GARÁZS, SAJÁT KERT – MINDEN, AMIT EGY CSALÁD KERESHET!
PRÉMIUM MŰSZAKI TARTALOMMAL ÉPÜLŐ CSALÁDI HÁZ ELADÓ VESZPRÉM-GYULAFIRÁTÓT CSENDES UTCÁJÁBAN!

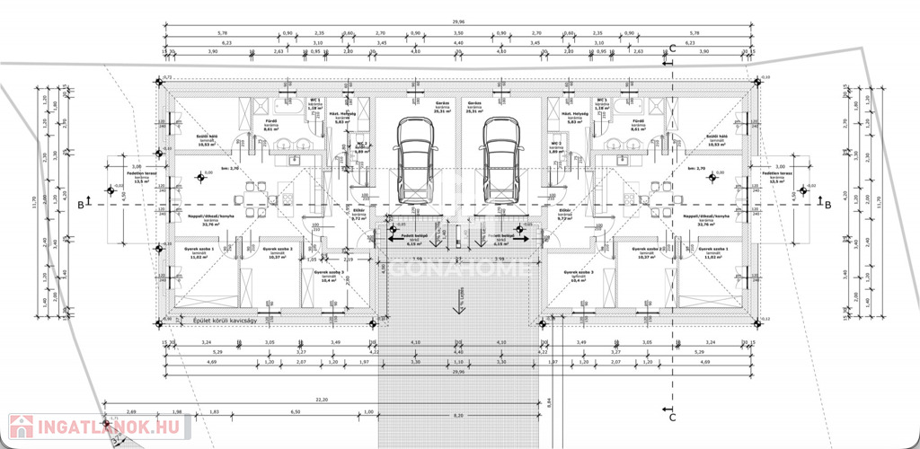
Veszprém-Gyulafirátót csendes, családias utcájában két önálló bejáratú, azonos elrendezésű, földszintes új építésű családi ház kerül kialakításra, garázzsal, saját kerttel és magas minőségű műszaki tartalommal.
A 1.134 m²-es telken épülő ingatlan a környék kertvárosias hangulatába tökéletesen illeszkedik, modern megjelenésével mégis kiemelkedik a megszokott kínálatból.


FŐBB JELLEMEZŐK:
- Hasznos alapterület lakásonként: 102 m²
- Saját kertrész: 300 m²
- Saját fűtött garázs (23 m² + 10 m² GALÉRIA) + murvás kocsibeálló
- 4 szoba + amerikai konyhás nappali
- Két fürdőhelyiség (külön WC + fürdő + extra WC)
- Háztartási helyiség
- Földszintes kialakítás – akadály mentesíthető
- Kiváló energetika: hőszivattyús fűtés
- 3 rétegű, magas minőségű nyílászárók
- 30°-os nyeregtető Bramac Római Novo antracit cseréppel
- Letisztult, modern homlokzat – Dryvit szigeteléssel


ELRENDEZÉS (mindkét lakás azonos alaprajzzal):
Teljes lakótér hasznos alapterülete: 102 m²

- Előtér: 9,72 m²
- 4 külön nyíló hálószoba: 10–11 m²
- Tágas nappali–konyha–étkező: 32,76 m²
- Fürdőszoba: 8,61 m²
- Külön WC: 1,18 m²
- Második WC: 1,89 m²
- Háztartási helyiség: 5,83 m²

+ Galériás, fűtött garázs: 23 m² közvetlen bejárattal az előtérbe


MŰSZAKI TARTALOM – KIEMELT MINŐSÉG:

Energetika és gépészet:
- Hőszivattyús fűtés rendszer (opcionálisan választható levegő-víz vagy levegő-levegő rendszer)
- HMV előállítása szintén hőszivattyúval
- Nappaliban klíma (opcionálisan, hűtéshez)
- Hő- és vízszigetelés: 15 cm homlokzati EPS szigetelés; 10 cm XPS lábazati szigetelés; 10 cm lépésálló hőszigetelés a padlóban

Nyílászárók:
- Többrétegű (3 rétegű), gázzal töltött üvegezés
- 6 légkamrás PVC profil
- Biztonsági vasalat, résszellőztető funkció
- Uw = 0.5 W/m²K

Tetőszerkezet:
- 30°-os nyeregtető
- Bramac Római Novo antracit cserép
- Minőségi faanyag, tűz- és rovarkezeléssel

Burkolatok:
- Laminált padló: AC5 kopás állóságú, prémium minőség
- Kerámia burkolatok: Paradyz Pulso Grys, Pei 3 kopásállóság


Ez az új építésű, földszintes, dupla garázsos családi ház ideális választás azoknak, akik modern, energiatakarékos, azonnal költözhető és kiváló elrendezésű otthont keresnek Veszprém-Gyulafirátót legkedveltebb városrészén.


További információkért forduljon hozzám bizalommal, hívjon a megadott telefonszámon - akár hétvégén is!

Amennyiben az ingatlan megvásárlásához el kell adnia jelenlegi otthonát, úgy annak és a teljes folyamatnak a lebonyolításában is állok rendelkezésre!


TOVÁBBI SZOLGÁLTATÁSAINK:

- Megbízható ügyvédi háttér
- TELJESKÖRŰ INGTALAN FELÚJÍTÁS
- INGYENES, FÜGGETLEN hitelügyintézés
- INGYENES, FÜGGETLEN biztosítási tanácsadás
- Energetikai tanúsítvány és ingatlan értékbecslés készítése
- Klíma rendszerek kiépítése és beüzemelése
- Riasztó- és kamera rendszerek kiépítése
- Közművek és szolgáltatók átírása
- Birtokbaadás lebonyolítása
- Kert- és tereprendezés
- Ingatlan takarítás
- Költöztetés

10 ÉVES SZAKMAI TAPASZTALATTAL!


#gonahome #tegyelprobara #keressbizalommal #mindenamiingatlan

Családi ház részletei

Ár: 104 900 000 Ft
Méret: 102 négyzetméter
Azonosító: 11600014
Irodai azonosító: 349526
Telek: 300 négyzetméter
Ingatlan állapota: Kitűnő
Jelleg: családi ház
Építőanyag: Tégla
Komfort fokozat: Összkomfort
Kor: Új építésű
Egész szobák: 5

Egyéb jellemzők

  • Garázs
  • Terasz