Eladó lakás Ajka 79 000 000 Ft

Leírás

ELADÓ MODERN STÍLUSÚ, ÚJ ÉPÍTÉSŰ EMELETES LAKÁS - AJKA-BAKONYGYEPES 5 LAKÁSOS LAPOSTETŐS SORHÁZÁBAN!


FIGYELEM!
- JELENLEG SZERKEZETKÉSZ ÁLLAPOTBAN VAN
- MÉG 2 DB EMELETES ÉS 2 DB FÖLDSZINTI LAKÁS ELÉRHETŐ!
- A LAKÁSOK KULCSRAKÉSZ ÁLLAPOTBAN KERÜLNEK ÁTADÁSRA 2025. III. negyedévben
- A SORHÁZ 3 DB EMELETES LAKÁSBÓL, VALAMINT 2 DB FÖLDSZINTES LAKÁSBÓL ÁLL
- A LAKÁSOK ENERGIATAKARÉKOS MEGOLDÁSOKKAL KÉSZÜLTEK, AMI ALACSONYABB FENNTARTÁSI KÖLTSÉGET EREDMÉNYEZNEK!
- PARKOLNI A SORHÁZ UDVARÁN LEHETSÉGES, INGYENESEN!
- A SORHÁZ KERÍTÉSSEL KÖRBEZÁRT
- VÉTELÁR: 88.178.750 Ft

- A SORHÁZ KÖZELÉBEN TALÁLHATÓ ÉLELMISZERBOLT, AMELY GYALOGOSAN IS KÖNNYEN MEGKÖZELÍTHETŐ
- AJKA NÉHÁNY PERC AUTÓVAL ÉS TÖMEGKÖZLEKEDÉSSEL IS EGYARÁNT

- A LAKÁSOK MODERN KIALAKÍTÁSÚAK, A MAI KOR IGÉNYEINEK MEGFELELŐEN LETTEK TERVEZVE.

ALAPADATOK:

A SORHÁZ:
- ÉPÍTÉSI ÉVE: 2024 III. NEGYEDÉV
- VÁRHATÓ ÁTADÁS: 2025 III. NEGYEDÉV
- SZERKEZETE: TÉGLA

A LAKÁS:
- HASZNOS ALAPTERÜLETE (emelettel együtt): 89,75 m2
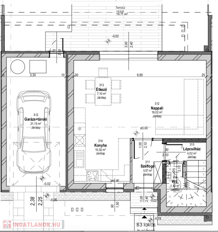
Földszint:
- szélfogó: 3,57 m2
- lépcsőház: 4,52 m2
- WC (lépcső alatt): 1,43 m2
- nappali: 16,02 m2
- étkező: 7,10 m2
- konyha: 10,52 m2
- garázs+ tároló: 21,15 m2
- terasz: 19,71 m2

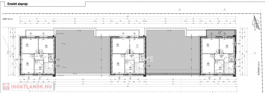
Emelet:
- közlekedő: 6,85 m2
- WC: 1,94 m2
- fürdő: 5,44 m2
- szoba: 10,89 m2
- szoba: 11,68 m2
- szoba: 9,79 m2

Telek méret: 177,65 m2


MŰSZAKI ALAPADATOK:

Főfalak: 25 és 30 cm-es Porotherm N+F falazattal készülnek.

Lakáselválasztó falak: Leiertherm 25 cm-es dupla falazat, hangszigeteléssel.

Áthidalók: monolit és kerámia áthidalók.

Födém: monolit vasbeton lemezek, szükséges áttörésekkel és attikaképzésekkel.

Lépcső: monolit vasbeton lépcső amely főfalakra és a födémekre támaszkodik fel.

Válaszfalak: Leier 10/50 cm-es válaszfaltéglából készülnek.

Korlátok: a külső erkélykorlátok saválló acél szerkezetek, illetve biztonsági üvegkorlátok
minimum 95 cm magassággal, a kiviteli és a látványterveknek megfelelően. A belső korlátok
saválló acél szerkezetek illetve biztonsági üvegkorlátok

Nyílászárók:
- Homlokzati ablakok, erkélyajtók, bejárati ajtók- 5 kamrás, 70 mm-es szerkezeti vastagságú, Spectus hőhídmentes műanyag nyílászárók, kétrétegű melegperemes hőszigetelő üvegezéssel, (Szerkezet határértke U=1,15 W/m2K), külső oldali antracit színben, belső oldali fehér színben.
- bejárati ajtó: Potsdam Glas 3 üveges díszpanel

- Garázskapu: hőszigetelt szekcionált garázskapu, szélesbordás, motoros, kívül antracit, belül fehér

Párkányok:
- Belül, fehér műanyag párkányok, kívül antracit színű alumínium lemezből készülő párkányok

Árnyékolás:
- Vakolható tokos, műanyag szerkezetű, kombinált redőnyök (redőny + rolós szúnyogháló) kézi működtetés, fehér színben

Szigetelés:
- Talajpára ellen aljzatbetonra bitumenes szigetelő lemez teljes felülete lángolvasztással elhelyezve.
- A vizes helyiségekben használati víz elleni kétkomponensű, kent szigetelés, hajlaterősítő szalaggal.
- Földszinten lépésálló hőszigetelés 13 cm vastag.
- Az emeleteken lépéshang gátló szigetelés 4 cm vastag.
- Homlokzati hőszigetelő rendszer színvakolattal.
- Színvakolt részeken általában 15 cm vastagságban, EPS 80 hőszigetelő lapokkal, ragasztóval és kiegészítő elemekkel készítve.
- Lábazatra 10 cm –es XPS hőszigetelés kerül felrögzítésre, szilikonos lábazati vakolattal.
- Lapostető egyenes rétegrendű PVC szigetelés, pontralejtéssel, attikafalak körbeszigetelésével, belső vízelvezetéssel, terhelés nélkül, mechanikai rögzítéssel.

Bádogos szerkezetek:
- festett alumínium lemez szegélyek és elemek, szakszerű rögzítéssel.

Aljzatbeton:
- helyszínen kevert gépi esztrich 6 és 7 cm vtg-ban,

Felületképzés:
A belső falfelületeken vakolat, funkció szerint csempe ill. diszperziós festés készül.

Burkolatok:
- A hidegpadlós helyiségekben a tulajdonosok által kiválasztott kerámiaburkolat elhelyezése, a
fürdő helyiségben csempe falburkolat ajtófélfa (2,1m) magasságban burkolva,a WC helyiségben csempe falburkolat 1,5 m magasságig burkolva,
- lábazatok a választott hidegburkolatból készülnek 7,5 cm szélességben.
- Választható hidegburkolatok egységára: bruttó 7.000 Ft/m2, tervek alapján
- Melegpadlós helyiségekben a tulajdonos által kiválasztott laminált padlóburkolat létesül.
- Választható meleg burkolatok + alátét fólia: bruttó 5.000 Ft/m2,
- Választható szegély egységára: bruttó 850 Ft/fm tervek alapján

Kémény: nem készül, HŐSZIVATTYÚS fűtés + PADLÓFŰTÉS

Egyéb:
- Kerítés: hátsó kertek körbekerítve 3D kerítéselemekkel antracit színben
- Tetőre való kijutás: Az emeleti tetőre az 1 szintes épületekről, ideiglenes létrával lehetséges a
tetőre való kijutás, amelynek használata a társasházi alapító okiratban kerül rögzítésre.
- Víz: Az utcai gerincvezetékről a telek ellátott, épületbe beállás készül
- Gáz: Az utcai gerincvezetékről a telek ellátott-nem kerül kiépítésre
- Áram: a szükséges energia ellátás az ingatlanra földkábeles becsatlakozási pontról, telepített szekrényből biztosított 1x32A (villamos mérőhelyeknek zsalukőfal kiépítése a helyszínrajzokon jelölt előkertekben)
- Csatorna: Az utcai gerincvezetékről a telek ellátott, épületbe beállás készül
- Fűtés: Lakásonkénti hőszivattyú padlófűtéses kivitelben
- Melegvíz ellátás: 100 L tárolós vízmelegítő
- Gyengeáramú rendszerek: (telefon, internet, tv) kiépítését utcai rendszerekről a területileg elérhető szolgáltatókkal önállóan szerződéssel kell megoldani.
- KLÍMA: Központi klímatizálás nem készül, előkészítés rendelhető árajánlat alapján.

Gépészeti szerelések:
A kétszintes lakásokban a víz és szennyvíz csövek a belső terekben, falon kívül kerülnek elvezetésre, gipszkarton dobozolással.

Az ár nem tartalmazza: kert rendezést, füvesítést, föld feltöltést.
A műszaki tartalom tájékoztató jellegű.

Ajka-Bakonygyepes egy településrész Veszprém megyében, Ajka város közigazgatási területén belül található.
Ez a kis településrész a BAKONY hegység lábánál helyezkedik el, gyönyörű természeti környezetben. Ajka-Bakonygyepes leginkább a nyugodt, falusias hangulatáról ismert, bár közigazgatásilag Ajkához tartozik, ami egy jelentősebb város a környéken, erős ipari hagyományokkal, főként az alumíniumgyártás területén.

A területre jellemzőek a bakonyi tájak, így az erdők, dombok és a vidéki nyugalom.

Az esetleges elírások, információk és a változtatások jogát fenntartjuk!

Amennyiben az ingatlan megvásárlásához el kell adnia jelenlegi otthonát, úgy annak és a teljes folyamatnak a lebonyolításában is állok rendelkezésre!



Amennyiben az ingatlan megvásárlásához el kell adnia jelenlegi otthonát, úgy annak és a teljes folyamatnak a lebonyolításában is állok rendelkezésre!

További információkért forduljon hozzám bizalommal, hívjon a megadott telefonszámon - akár hétvégén is!


AMIBEN MÉG SEGÍTENI TUDUNK:

- Megbízható ügyvédi háttér
- INGYENES, FÜGGETLEN hitelügyintézés
- INGYENES, FÜGGETLEN biztosítási tanácsadás
- Energetikai tanúsítvány és ingatlan értékbecslés készítése
- Közművek és szolgáltatók átírása
- Birtokbaadás lebonyolítása
- Felújítások/Teljes kivitelezés
- Riasztó rendszerek kiépítése
- Kert- és tereprendezés
- Ingatlan takarítás
- Költöztetés


10 ÉVES SZAKMAI TAPASZTALATTAL!

Lakás részletei

Ár: 79 000 000 Ft
Méret: 89 négyzetméter
Azonosító: 11591329
Irodai azonosító: 322752
Emelet: 1. emelet
Építőanyag: Tégla
Fűtés jellege: Cirkó
Ingatlan állapota: Kitűnő
Komfort fokozat: Összkomfort
Építési év: Új építésű
Egész szobák: 3

Egyéb jellemzők

  • Erkély
  • Lift
  • Kertkapcsolat