Az értékesítő:
Hámori-Ébel Emese
+36 30 997 4501

Eladó családi ház Nagyvázsony, 49 990 000 Ft, 140 négyzetméter

49 990 000 Ft
családi ház, 140 négyzetméter
Egész szobák:
3
Komfort fokozat:
Összkomfort
Ingatlan állapota:
Felújítandó
Azonosító:
11541115
Értékesítés típusa:
eladó
Ingatlan típusa:
családi ház
Jelleg:
Családi ház
Település:
Nagyvázsony
Alapterület:
140
Telekterület:
1600
Ár:
49 990 000 Ft
Fűtés jellege:
Cserépkályha
Erkély:
Nincs
Telekterület típusa:
négyzetméter
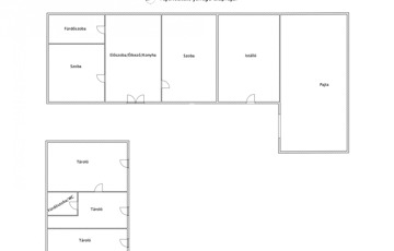
ELADÓ FELÚJÍTANDÓ CSALÁDI HÁZ NAGYVÁZSONY CSENDES UTCÁJÁBAN! FIGYELEM! - 2015-ben az ingatlan fürdőszobájának burkolatai, valamint az egyik szoba padlóburkolata felújításra került. - Ugyanebben az évben a teljes víz- és villamoshálózat cseréje is megtörtént. - Az udvarban található egy istálló, pajta rész, valamint egy 60 m2-es MELLÉKÉPÜLET is, amiben található egy zuhanyzós fürdőszoba is, WC-vel. - A telek mérete 1.600 m2, övezeti besorolása: Lf-1. - A gázcsonk a telken belül található, így a gázbekötés lehetősége biztosított. - Az ingatlan TEHERMENTES, tulajdonviszonyai rendezettek! - Az esetleges elírások, információk és a változtatások jogát fenntartjuk ALAPADATOK: - Építési év: ∼1950 - Az ingatlan akadálymentesített! - Szerkezete: KŐ - Szigetelés: nincs, falvastagság kb. 60 cm. - Lakótér hasznos alapterülete: ∼ 80 m2, mely 2 szobából, 1 fürdőszobából és egy előszoba/konyha/étkező részből áll. MŰSZAKI ÉS ESZTÉTIKAI ÁLLAPOT: - A fűtést felújított CSERÉPKÁLYHA, melléképületben FA TÜZELÉSŰ KAZÁN biztosítja a fűtést. - A melegvízről VILLANYBOJLER gondoskodik - A nyílászárók új fa nyílászárók, 2 rétegű üvegezéssel - A tető szerkezete jó állapotú, fedése pala - A villany- és vízvezeték-hálózat cseréje megtörtént! Az ingatlan felújítása és átalakítása kiváló lehetőségeket tartogat az új tulajdonos számára – a kedvező telekméret és a többszintes kialakítás sokféle elképzelés megvalósítását teszi lehetővé. A mindennapi élethez szükséges alapvető szolgáltatások és bevásárlási lehetőségek elérhetők a településen. Pl.: Élelmiszerbolt, Pékség, Általános Iskola, Orvosi rendelő, Óvoda, Posta Közelben: buszmegálló. Nagyvázsony egy csendes, történelmi település Veszprém megyében, a Balaton-felvidék szívében. Nagyvázsony Község Helyi Építési Szabályzata (HÉSZ) – Lf-1 övezetre vonatkozó jellemzők: Kialakítható/beépíthető telek legkisebb mérete: 900 m² Telekszélesség minimum: 16 m Beépítési mód: O (oldalhatáron álló) Max. beépítettség: 30% Max. építménymagasság: 4 m Amennyiben az ingatlan megvásárlásához el kell adnia jelenlegi otthonát, úgy annak és a teljes folyamatnak a lebonyolításában is állok rendelkezésre! További információkért forduljon hozzám bizalommal, hívjon a megadott telefonszámon - akár hétvégén is! TOVÁBBI SZOLGÁLTATÁSAINK: - Megbízható ügyvédi háttér - INGYENES, FÜGGETLEN hitelügyintézés - INGYENES, FÜGGETLEN biztosítási tanácsadás - Energetikai tanúsítvány és ingatlan értékbecslés készítése - Klíma rendszerek kiépítése és beüzemelése - Riasztó- és kamera rendszerek kiépítése - Közművek és szolgáltatók átírása - Birtokbaadás lebonyolítása - Kert- és tereprendezés - Ingatlan takarítás - Ingatlan felújítás - Költöztetés 10 ÉVES SZAKMAI TAPASZTALATTAL! #gonahome #tegyelprobara #keressbizalommal #mindenamiingatlan
https://ingatlanok.hu/elado/haz/nagyvazsony/50-millio-ft;140-negyzetmeter;3-szoba;cserpkelyha-futes/11541115